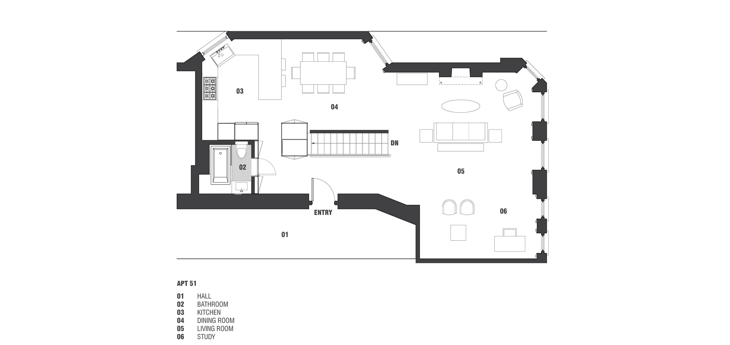
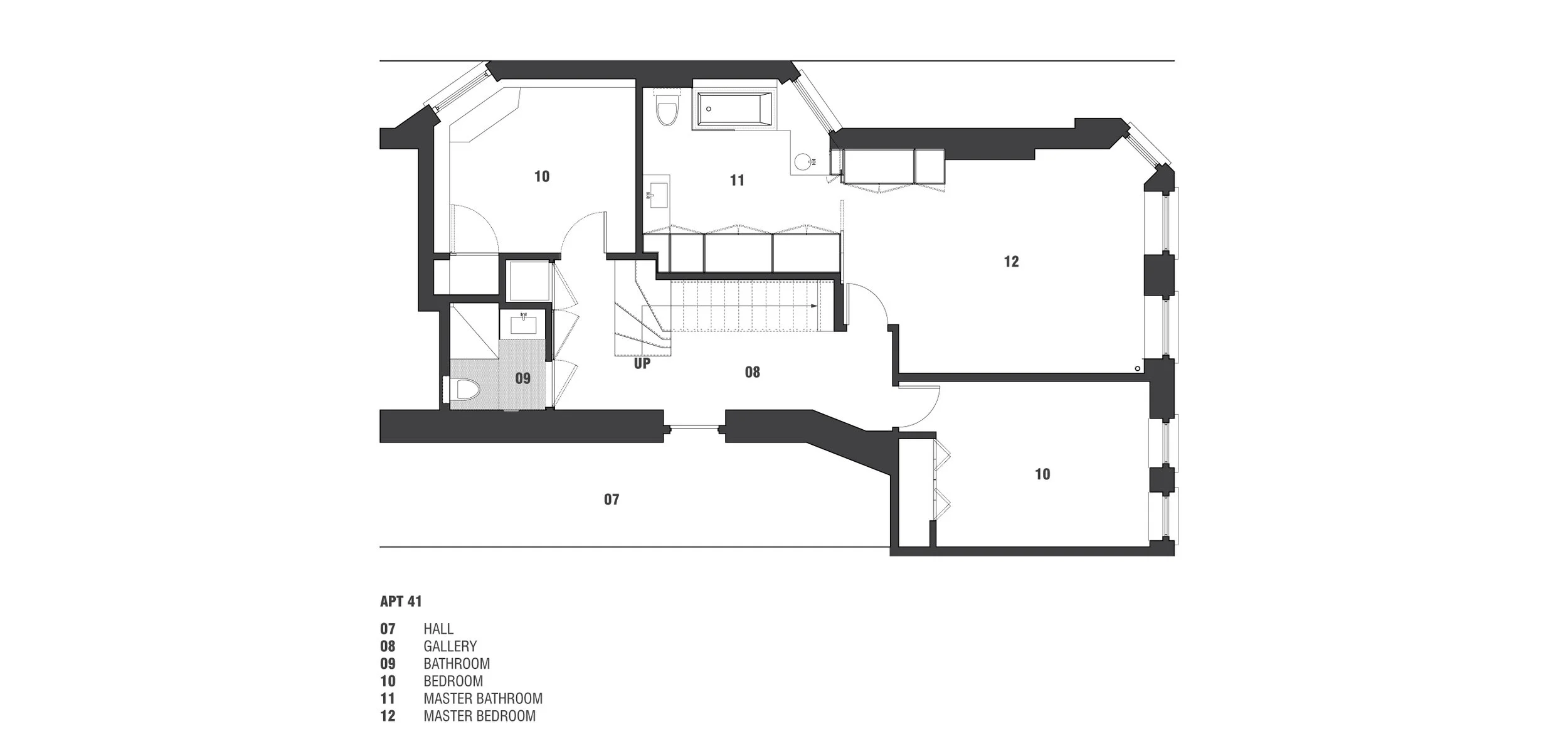
Upper West Side


New York City, NY
Completed 2015

Architecture DARCH
Project Mgmt ARKPRAXIS Architecture

Unification and complete renovation of two vertical apartment units in a landmarked building in upper west side, Manhattan. With the introduction of a cantilevered steel/wood communicating stair, the combined apartments were divided into open living/dining areas above (the prairie) and sleeping areas below (the burrow/den). Role in project involved all phases of Design and Construction, in-cluding Construction Administration + NYC DoB/Landmark Commis-sion code research and correspondence.

Previous
Previous

Vermont

Next
Next

Carnegie Hill